الـــ القلب ـــكـبـيـر
طيب كم مساحه الارض وكم تبغون مساحة البناء ؟ مو مكتوب في مخططكم لو تقوليلي يصير اسهل ادور لك مخططات انسب لمساحتكم انا بدور في النت وفي المخططات اللي في كمبيوتري لان عندي مجموعه وان شاء الله تساعدك
طيب كم مساحه الارض وكم تبغون مساحة البناء ؟ مو مكتوب في مخططكم لو تقوليلي يصير اسهل ادور لك...
اشكر الجميع ما قصرتوا في تفاعلكم معي وهذا مخطط الارض وطبعنا شقق فوق

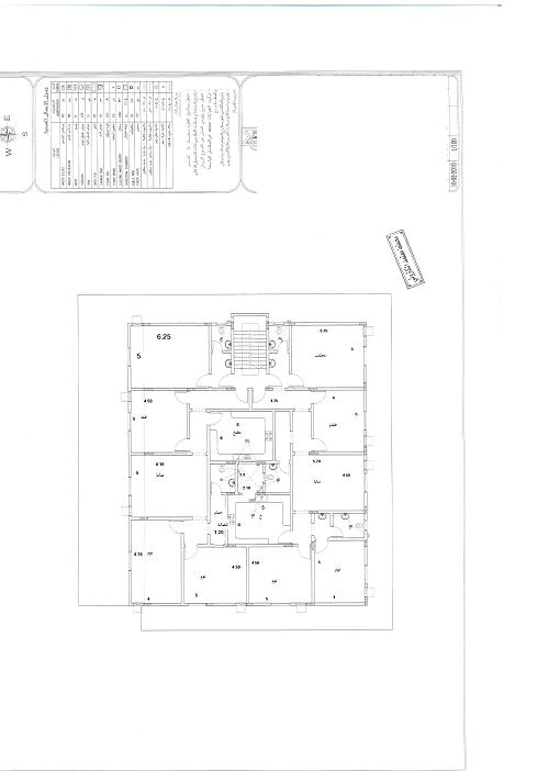
المساحة الكلية للأرض 665 نسبة البناء 60% فيه بروز للدور الثاني الشقق 1.25 بمساحة تقريبا 428

الدور الارضي 396 تقريبا الاطوال الضلع الشرقي 25 متر الضلع الغربي 20 متر ثم دخلة 2متر ثم 5متر الضلع
الجنوبي والشمالي 27
المطلوب : دور أرضي وشقتين وملحق 50% من شروط البلدية عدم فتح صالة على المنور ... المخطط تم اغتماده من البلدية يالمساحات الموضحة .... هذي مخططات الدور الثاني ( الشقق ) والدور الارضي تعديل بسيط

المشكلة الاساسية في المخططات انا اريد الصالة في منطقة مغلقة من الجوانب مفتوحة من الامام بقوس بس اذا جات في النصف تكون مكتومة ما فية تهوية لها المشكلة الثانية المنور في بالي ان الصالة العائلية تكون في جهة مكان تهوية المطبخ كذلك بس ماهي راضية تجي في التعديل ياليت وصلت الصورة للمخطط فزعتكم

هذا مخطط الدور الارضي



مخطط الشقق





هذا مخطط البيت انتظررايكم

علمنا اني اريد مدخلين رجال وواحد للنساء الصالة تكون جانبية تفتح من الامام علي المطبخ يكون فية مستودع وغرفة شغالة ومكان للغسيل خارجي وغرف النوم تكون مستقلة عن البت هذا ما اريد بس المخطط التوزيع تعبني ماهو راضي يزبط معي انا اعطيتكم المساحة همتكم معي
الـــ القلب ـــكـبـيـر
لانا ياعيوني مشكورة يا قلبي تعبتك بس والله يا غالية حاولت اتصور البيت ما قدرت تعرفي االتخطيط او الطبيعة غير حاولي تنزلي لي المخطط اذا ممكن

يارب تيسر لكل وحدة موجودة تيسر لنا للجميع
ولاف
ولاف
هلا اختي اكثر الي اشوف بيوتهم مالها شباك
هلا اختي اكثر الي اشوف بيوتهم مالها شباك
مشكوره حلا
مدري حسيت بيكون كتمه ومظلم بس شكلو ماراح يصير فيه والسبب ضيق المكان
ام طارق الحلو
ام طارق الحلو
هلااااااااااااا اخواتي بنزل لكم المخطط الاصلي المخطط بعد التعديل ياليت يا غاليات تشوف اي وحد افضل اذا عندكم افكار ياليت تعطوني اياها تعاديلات لكم الشكر اشكر اختي ام طا رق مشكورة يا قلبي انتي ما قصرتي معي وتعبتك الله يكتب لك الاجر انتي الاخوات مشكورة علي دعواتك لك بالمثل دعواتكم ربي يسهل علينا يكتب لنا الخير نبدا المخطط الاصلي [ المخطط بعد التعديل انتظر رايكم وقترحاتكم
هلااااااااااااا اخواتي بنزل لكم المخطط الاصلي المخطط بعد التعديل ياليت يا غاليات تشوف اي وحد افضل...
قلوبه شوفي هاالتعديل اهم مافيه تقليل الممرات وقرب المطبخ للمقلط والمجلس ومجلس النساء وصاله المعيشه وبعد غرف النوم عن الضيوف وطبعا انتي عدلي على المساحات مثلا المجلس يكون خمسه وطبعا يأخذ من مساحه المقلط وكذاء وان شاء الله نعدل مع بعض وتشوفي المخطط الي يسرك
وردة قرمزية
وردة قرمزية
اشكر الجميع ما قصرتوا في تفاعلكم معي وهذا مخطط الارض وطبعنا شقق فوق المساحة الكلية للأرض 665 نسبة البناء 60% فيه بروز للدور الثاني الشقق 1.25 بمساحة تقريبا 428 الدور الارضي 396 تقريبا الاطوال الضلع الشرقي 25 متر الضلع الغربي 20 متر ثم دخلة 2متر ثم 5متر الضلع الجنوبي والشمالي 27 المطلوب : دور أرضي وشقتين وملحق 50% من شروط البلدية عدم فتح صالة على المنور ... المخطط تم اغتماده من البلدية يالمساحات الموضحة .... هذي مخططات الدور الثاني ( الشقق ) والدور الارضي تعديل بسيط المشكلة الاساسية في المخططات انا اريد الصالة في منطقة مغلقة من الجوانب مفتوحة من الامام بقوس بس اذا جات في النصف تكون مكتومة ما فية تهوية لها المشكلة الثانية المنور في بالي ان الصالة العائلية تكون في جهة مكان تهوية المطبخ كذلك بس ماهي راضية تجي في التعديل ياليت وصلت الصورة للمخطط فزعتكم هذا مخطط الدور الارضي مخطط الشقق هذا مخطط البيت انتظررايكم علمنا اني اريد مدخلين رجال وواحد للنساء الصالة تكون جانبية تفتح من الامام علي المطبخ يكون فية مستودع وغرفة شغالة ومكان للغسيل خارجي وغرف النوم تكون مستقلة عن البت هذا ما اريد بس المخطط التوزيع تعبني ماهو راضي يزبط معي انا اعطيتكم المساحة همتكم معي
اشكر الجميع ما قصرتوا في تفاعلكم معي وهذا مخطط الارض وطبعنا شقق فوق المساحة الكلية للأرض 665...
طيب الصورة اوضح بس باقي شي مهم اي طول ضلع مطل عل الشارع واي واحد على جار ؟ ال25 ولا ال 27 على شارع؟ الارض على شارع واحد ولا اثنين عشان اعرف فين المداخل